DLGD

Diseño arquitectónico y de interiores

Agosto 2022
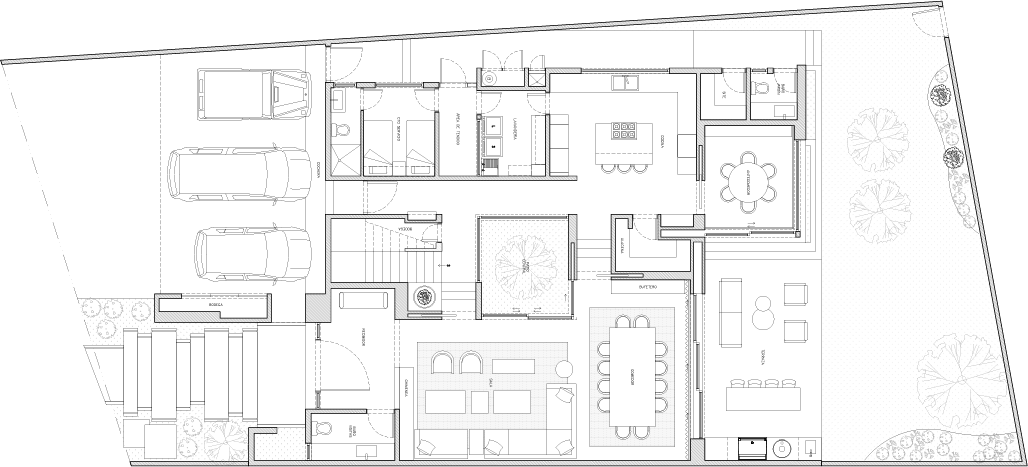
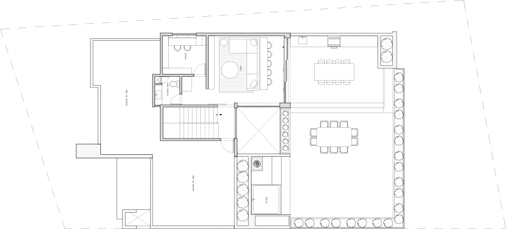
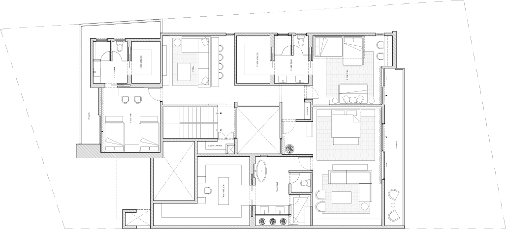
Una de las principales características de la casa fue integrar la naturaleza en el interior de la misma. Por ese motivo se optó por incluir un jardín central en medio de las áreas sociales, este patio o cubo central se encuentra a través de los tres niveles. El jardín central permite la ventilación cruzada, así como también iluminación natural en la mayoría de los espacios.
Residencial

Planos

Ver planos completos